

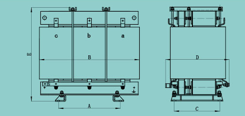
四、参数与尺寸

| 型号 | 相数 | 额定容量 KVA | 频率 HZ | 尺寸 /mm | 绝缘等级 | |||||
| A | B | C | D | E | 安装孔 | |||||
| SGK - 2 | 3 | 80 | 50 | 380 | 615 | 280 | 400 | 590 | 14*20 | H | 
| SGK - 2 | 3 | 100 | 50 | 400 | 735 | 400 | 460 | 580 | 14*20 | H | 

 厂址:山东省青岛市即墨区环保产业园即发龙山路50号
 业务电话:0532-88564000
 物流电话:0532-88564000转物流部
                        
 投诉电话:13012516897
 传真:0532-88563775
 邮箱:lanyudianqi@126.com
 网址:www.lesgitesinsolites.com
 客服热线:400-0532-669